Voir galerie

PEB D

Bureau

Liège
4020

749.000 €

Réf. 2083

4 chambre(s)
2 salle(s) de bain
400m²
terrasse

A vendre

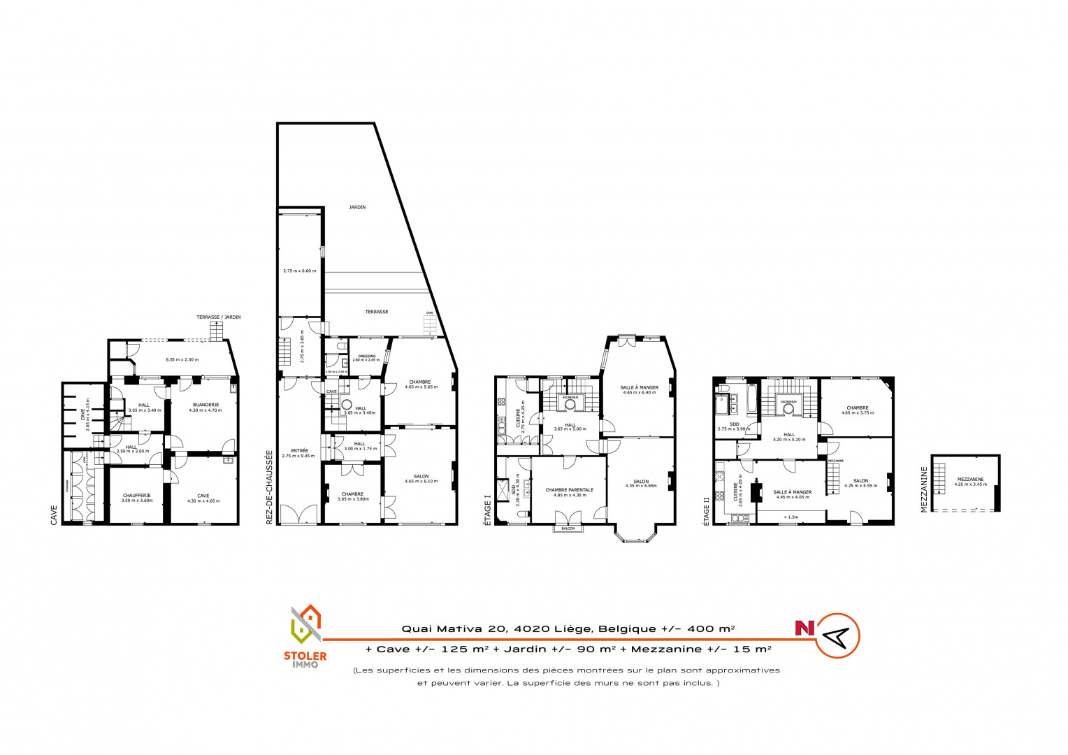
Découvrez cette magnifique et spacieuse maison de Maître située au cœur de Liège, sur le  Quai Mativa, à proximité immédiate du magnifique parc de la Boverie.
Le rez-de-chaussée doté d'un vaste hall d'entrée, se prête parfaitement  à une utilisation professionnelle telle qu'un cabinet libéral ou des bureaux. 
Elle dispose également d'un espace extérieur avec une terrasse et un jardin, ainsi que 125 mètres carrés de caves incluant un local chaufferie et une buanderie.
Cette bâtisse, dotée d'une superficie habitable de plus de 400 mètres carrés offre un espace de vie spacieux et confortable et un potentiel immense.
Son architecture remarquable, disposant également d'un ascenseur ainsi que son emplacement privilégié en font une propriété d'exception.
Pour organiser une visite, veuillez contacter Monsieur DELHAYE au 0493/50.25.22.


Imprimer Flyers Nous contacter


Détails

Chambre(s) : 4
Salle(s) de bain : 2
Surface habitable : 400m²
Nombre de façades : 2
Terrasse : Oui

Pièces

Chambre 1 Oui
Chambre 2 Oui
Chambre 3 Oui
Chambre 4 Oui
Salle de bains 2 1
Salle de bains Oui

Terrain

Raccordement Oui
Raccordement aux égouts Raccordé

Charges / Revenus

Revenu cadastral 2870 €

Aux alentours

Type d'environnement Urbain
Entrée d'autoroute 1100 m
Gare 453 m

Equipements

Chauffage Mazout
Type de cuisine Equipée
Equipement salle de bains Baignoire et douche
Châssis PVC
Internet Oui
Télédistribution Oui

Jardin / Terrasse

Orientation du jardin Est
Terrasse Oui
Orientation de la terrasse Est
Jardin Oui

Administratif

Disponibilité A l'acte

Bâtiment

Etat général Bon
Nombre d'étage 1

PEB / certifications

Code unique PEB 20230116018528
Cons. tot. energie primaire 149138 kWh par an
Cons. spéc. d'énergie primaire 338 kWh/m² par an
Date de validité 2033-01-16T13:57:00.000Z
Emissions carbone 85


Adresse du bien
Quai Mativa, 20, 4020 Liège (Bon), BE

Vous avez des questions ?
N’hésitez pas à passer à notre agence ou à nous envoyer un message.