Voir galerie

Bureau

Liège
4020

319.000 €

Réf. 2082

300m²

A vendre

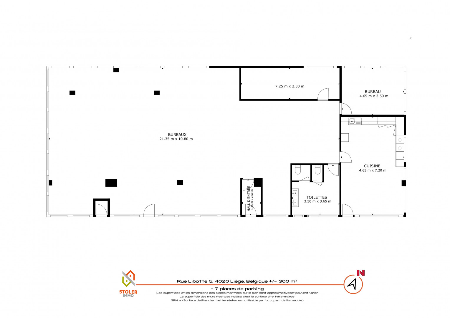
À vendre – Bureaux lumineux de ±300 m² avec possibilité de 7 emplacements de parking privatifs (équipés de bornes électriques).
Situés Rue Libotte 5 à Liège, ces espaces bénéficient d’une excellente visibilité et accessibilité, à deux pas de la Médiacité et à proximité immédiate des grands axes routiers ainsi que de nombreuses commodités.
Le bien se compose d’un vaste open space modulable, de deux bureaux fermés, d’une cuisine équipée, de sanitaires séparés et d’un hall d’accueil / réception.
Les espaces sont flexibles, fonctionnels et immédiatement opérationnels.
Équipements : chaudière au gaz (dernier entretien en 2024), installation électrique conforme, climatisation (dernier entretien en 2025), bâtiment hautement sécurisé avec système d’alarme et capteurs.
Idéal pour une PME, des professions libérales ou un projet de coworking.
Prix de vente : 319.000 € (hors parkings).


Imprimer Flyers Nous contacter


Détails

Surface habitable : 300m²

Terrain

Raccordement Oui
Raccordement aux égouts Raccordé

Charges / Revenus

Revenu cadastral 3738 €

Aux alentours

Type d'environnement Urbain
Type de zone inondable Hors zone inondable
Entrée d'autoroute 1200 m
Centre ville 1400 m

Bâtiment

Etat général A rafraichir


Adresse du bien
Rue Libotte, 5, 4020 Liège (À rafraîchir), BE

Vous avez des questions ?
N’hésitez pas à passer à notre agence ou à nous envoyer un message.