Voir galerie

PEB E

Maison

Liège
4000

299.000 €

Réf. 2120

3 chambre(s)
1 salle(s) de bain
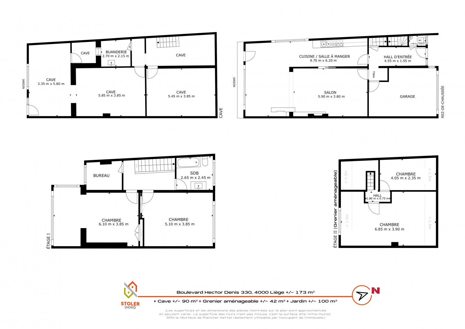
173m²

Option

Maison unifamiliale idéalement située sur le Boulevard Hector Denis 330 à Liège
Cette maison lumineuse vous séduira par son exposition plein sud et sa situation idéale à proximité de toutes les commodités.
Elle se compose comme suit :
Rez-de-chaussée : hall d’entrée, WC séparé, garage, cuisine, salon et salle à manger baignés de lumière naturelle.
1er étage : deux très grandes chambres 24 et 19 m2 , une chambre bébé et une salle de bain.
Grenier aménageables : plus de 45 m² exploitables, parfaits pour créer une suite parentale avec une vue imprenable sur la ville de Liège.
Sous-sol : caves sur toute la surface du bâtiment (±90 m²) offrant un bel espace de rangement ou d’aménagement complémentaire.
À l’extérieur, profitez d’un magnifique jardin exposé plein sud, idéal pour les beaux jours en famille ou entre amis.
Un bien rare à ne pas manquer !
Parfait pour une famille à la recherche d’espace, de lumière et de potentiel.
Intéressé(e) ? N’attendez plus et planifiez votre visite dès maintenant ! Contactez Mr Lanera au 0497/61.08.13


Imprimer Flyers Nous contacter


Détails

Chambre(s) : 3
Salle(s) de bain : 1
Surface habitable : 173m²
Nombre de façades : 2
Jardin : Oui

Pièces

Chambre 1 24 m2
Chambre 2 19 m2
Cuisine 60 m2
Salle de bains 6.5 m2
Bureau 1 10 m2
Salon 22.5 m2
Buanderie 6
Grenier 42 m2
Caves 90 m2

Terrain

Raccordement Oui
Raccordement aux égouts Raccordé

Aux alentours

Type d'environnement Urbain
Entrée d'autoroute 1700 m
Centre ville 5000 m

Equipements

Chauffage Gaz
Double vitrage Oui
Type de vitrage Simple
Châssis Aluminium
Internet Oui
Télédistribution Oui

Jardin / Terrasse

Jardin 100 m2

Administratif

Disponibilité A l'acte

Bâtiment

Etat général Bon

PEB / certifications

Code unique PEB 20250618043106
Cons. tot. energie primaire 68022 kWh par an
Cons. spéc. d'énergie primaire 393 kWh/m² par an
Date de validité 2035-06-18T11:01:00.000Z
Emissions carbone 72
Certificat electrique Oui


Adresse du bien
Boulevard Hector Denis, 330, 4000 Liège (Bon), BE

Vous avez des questions ?
N’hésitez pas à passer à notre agence ou à nous envoyer un message.