Voir galerie

Commerce

Liège
4000

129.000 €

Réf. 2348

60m²

A vendre

Commerce à vendre – Institut de beauté – Boulevard d’Avroy
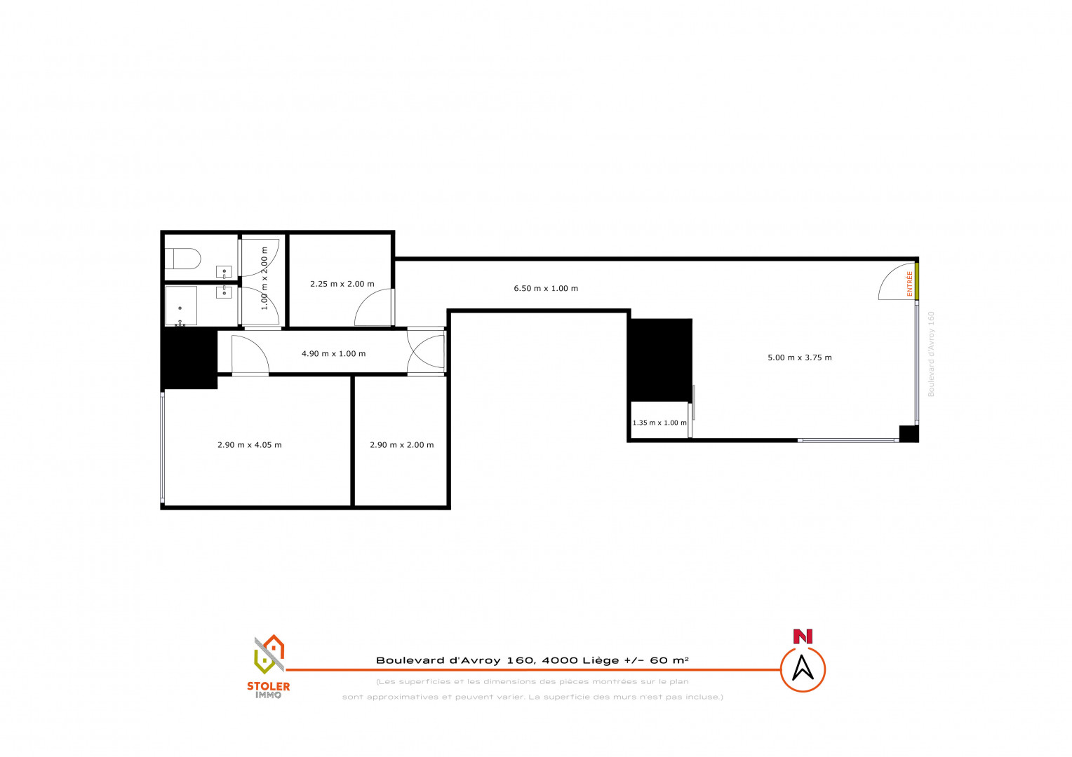
Situé sur le très prisé boulevard d’Avroy, ce commerce d’environ 60 m² accueille actuellement un institut de beauté exploité dans un cadre soigné et élégant.
Le bien se distingue par son excellent état général, sa présentation irréprochable et son atmosphère professionnelle, idéale pour une activité dans le secteur du bien-être, de l’esthétique ou toute profession libérale.
Description : 
Surface d’environ 60 m²
Aménagement qualitatif et contemporain
Espaces bien agencés, prêts à l’emploi
Aucune rénovation à prévoir
Belle visibilité dans un quartier recherché et vivant
Atout rare :
Possibilité d’acquérir un très grand emplacement de parking dans la résidence, un véritable avantage en centre-ville.
Situation :
Emplacement stratégique sur le boulevard d’Avroy, à proximité immédiate des commerces, transports en commun et parkings publics, dans un environnement dynamique et qualitatif.


Imprimer Flyers Nous contacter


Détails

Surface habitable : 60m²
Nombre de façades : 2

Terrain

Raccordement Oui
Raccordement aux égouts Raccordé

Charges / Revenus

Revenu cadastral 1150 €

Aux alentours

Type d'environnement Urbain
Entrée d'autoroute 325 m
Centre ville 1500 m

Equipements

Chauffage Gaz

Urbanisme et risques

Type de zone inondable Zone non inondable


Adresse du bien
Boulevard d'Avroy, 160, 4000 Liège (Bon), BE

Vous avez des questions ?
N’hésitez pas à passer à notre agence ou à nous envoyer un message.