Voir galerie

PEB C

Immeuble de rapport

Liège
4000

Apd 849.000 €

Réf. 2129

12 chambre(s)
4 salle(s) de bain
425m²

A vendre

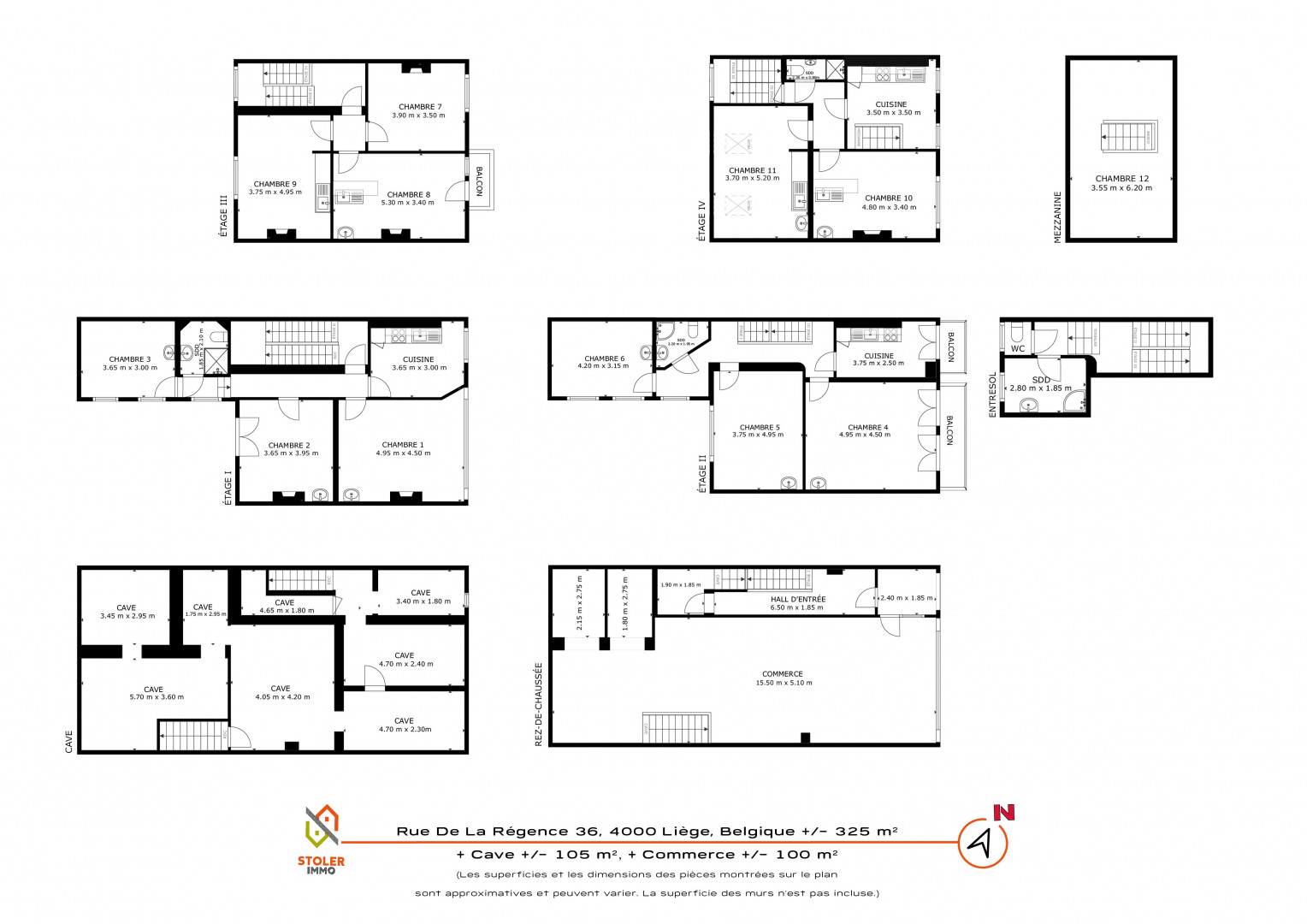
Immeuble de rapport avec commerce et 325 m² d'habitation, idéalement situé en plein cœur du centre-ville de Liège.
Ce bien dispose d'un permis de location pour une affectation en habitation collective et répond aux normes en vigueur en matière d'électricité, de gaz et de sécurité incendie.
Il se compose d'un hall d'entrée, de trois cuisines, de douze chambres, de quatre salles de bain et de quatre WC.
Vous bénéficiez également d'un rez-de-chaussée commercial d'une superficie de 100 m² ainsi que de 105 m² de caves.
À seulement 2 minutes à pied du centre-ville, cet immeuble profite d'un emplacement privilégié à proximité immédiate de toutes les commodités : commerces, transports en commun et établissements scolaires.
Le revenu locatif actuel s'élève à 4.985 € charges comprises, hors commerce.


Imprimer Flyers Nous contacter


Détails

Chambre(s) : 12
Salle(s) de bain : 4
Surface habitable : 425m²
Nombre de façades : 2

Terrain

Raccordement Oui
Raccordement aux égouts Raccordé

Charges / Revenus

Revenu cadastral 6981 €

Aux alentours

Type d'environnement Urbain
Entrée d'autoroute 1400 m
Centre ville 100 m

Equipements

Chauffage Gaz
Double vitrage Oui
Châssis PVC
Parlophone Oui
Internet Oui
Télédistribution Oui

Administratif

Disponibilité A l'acte
Bien d'investissement Oui

Bâtiment

Etat général A rafraichir

PEB / certifications

Code unique PEB 20220801017411
Cons. tot. energie primaire 20075 kWh par an
Cons. spéc. d'énergie primaire 242 kWh/m² par an
Date de validité 2032-08-01T12:27:00.000Z
Emissions carbone 44
Certificat electrique Oui
Certificat electrique conforme Oui


Adresse du bien
Rue de la Régence, 36, 4000 Liège (À rafraîchir), BE

Vous avez des questions ?
N’hésitez pas à passer à notre agence ou à nous envoyer un message.