Voir galerie

PEB G

Maison

Liège
4000

169.000 €

Réf. 2358

3 chambre(s)
2 salle(s) de bain
240m²

Nouveau - A vendre

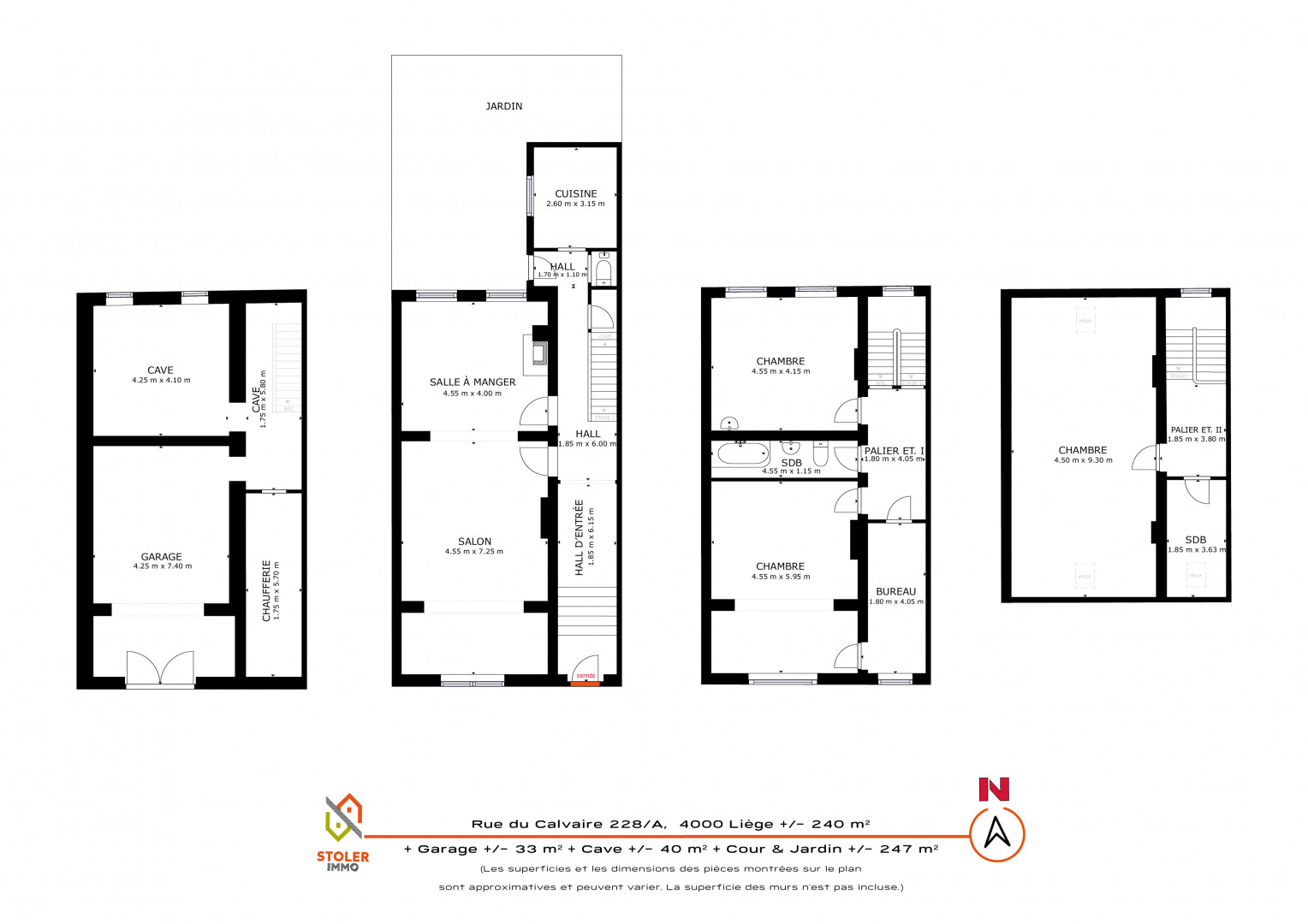
Située Rue du Calvaire à Liège, cette maison unifamiliale développe une superficie d’environ 240 m² et constitue une excellente base pour un projet de rénovation complet.
Le rez-de-chaussée se compose d’un salon lumineux, d’une salle à manger distincte et d’une cuisine à l’arrière avec accès à la cour et au jardin. Les volumes existants permettent une réorganisation harmonieuse des espaces de vie selon les standards actuels.
Les étages offrent plusieurs chambres de belles dimensions, un bureau ainsi qu’une salle de bain, laissant de nombreuses possibilités d’aménagement, tant pour une famille que pour un projet d’investissement.
Le bien dispose également d’un garage, de caves spacieuses et d’un extérieur rare en milieu urbain, comprenant une cour et un jardin totalisant environ 247 m².
Une opportunité intéressante pour les amateurs de rénovation à la recherche d’un bien à fort potentiel, dans un environnement résidentiel à Liège.
Visite virtuelle disponible.


Imprimer Flyers Nous contacter


Détails

Chambre(s) : 3
Salle(s) de bain : 2
Surface habitable : 240m²
Nombre de façades : 2
Jardin : Oui

Terrain

Raccordement Oui
Raccordement aux égouts Raccordé

Aux alentours

Type d'environnement Urbain
Entrée d'autoroute 227 m
Centre ville 4000 m

Equipements

Chauffage Pas installé

Jardin / Terrasse

Jardin 247 m2

Administratif

Disponibilité A l'acte

Bâtiment

Etat général A rénover

Urbanisme et risques

Type de zone inondable Zone non inondable


Adresse du bien
Rue du Calvaire, 228a, 4000 Liège (À rénover), BE

Vous avez des questions ?
N’hésitez pas à passer à notre agence ou à nous envoyer un message.